APPARTEMENT T1 A LOUER - MARQUETTE LEZ LILLE - 34.23 m2 - 454 € charges comprises par mois
LOCATION - TYPE 1 – MARQUETTE LEZ LILLE – REF : MA609
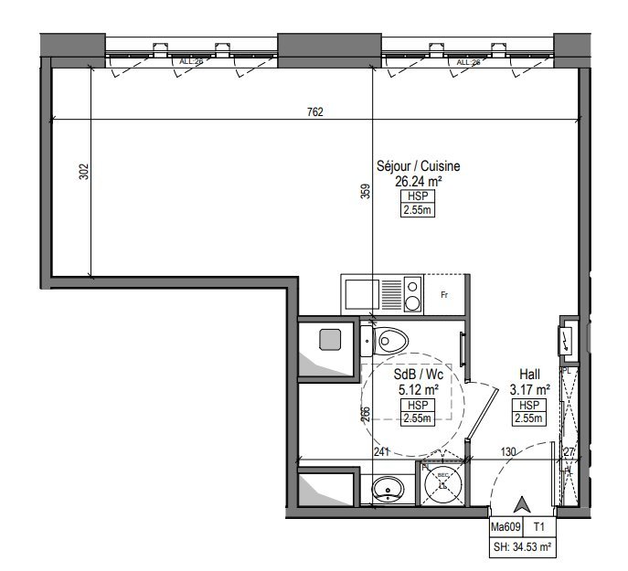
L'agence MGLJ vous propose à la location un appartement de type 1 de 34,23m2 sur la commune de Marquette Lez Lille.
À louer pour un loyer mensuel de 414,24€ + 39,00€ de provision sur charges soit un loyer de 453,23€ charges comprises.
Un appartement de type 1 au 6eme étage, comprenant une pièce de vie, une cuisine meublée et équipée, une salle de bain avec WC. Ce bien est complété d'une cave.
Logement récent.
Bien non soumis au DPE (Monument historique)
Les informations sur les risques auxquels ce bien est exposé sont disponibles sur le site Géorisques : www.georisques.gouv.fr.
REF : MA609
Honoraire agence : 13€/m2 (frais état des lieux entrant inclus)
MGLJ - Au cœur de vos projets immobiliers, on vous accompagne dans la Vente, la Location et la Gestion immobilière.
Les informations sur les risques auxquels ce bien est exposé sont disponibles sur le site Géorisques : www.georisques.gouv.fr
Réf : 45
Disponibilité
immédiate
Caractéristiques
Informations financières
- loyer mensuel charges comprises : 454 €
- dont provision mensuelle des charges locatives : 39 € (régularisation annuelle)
- dépôt de garantie : 415 €
- honoraires charge locataire TTC : 450 €
- dont pour l'état des lieux : 103 €
Imprimer la ficheVoir nos prestations et tarifs
Classe énergie et classe climat
DPE VIERGE
DPE ANCIENNE VERSION
L'agence
MGLJ
8 RUE LEO LAGRANGE
59263 HOUPLIN ANCOISNE
Tél : 06 10 13 17 55
Votre conseiller
Marie-Laure FERNANDES
Tél : 06 10 13 17 55
Contactez-nous
pour visiter ce bien
Ecoles, transports, sorties et commerces sur MARQUETTE LEZ LILLE (59520)
Marquette Lez Lille est une ville de 11 213 habitants. Côté immobilier, les habitations sont réparties en 73 % de maisons et 27 % d'appartements. On y trouve des commerces dont des supermarchés ou supérettes. On trouve des établissements scolaires et des crèches à Marquette Lez Lille.
En savoir plus sur Marquette Lez Lille

