APPARTEMENT T3 A LOUER - SECLIN - 58 m2 - 725 € charges comprises par mois
LOCATION - TYPE 3 – SECLIN – REF : M003
L'agence MGLJ vous propose à la location un appartement de type 3 de 58m2 sur la commune de Seclin dans le domaine Marguerite de Flandre.
À louer pour un loyer mensuel de 635,00€ + 90,00€ de provision sur charges soit un loyer de 725,00€ charges comprises.
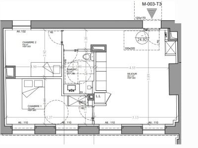
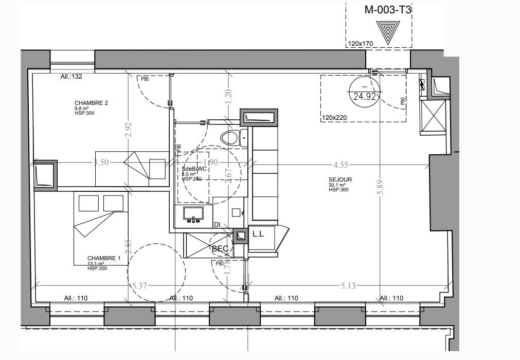
Un appartement de type 3 au rez-de-chaussée, comprenant une pièce de vie, une cuisine meublée et équipée (plaque de cuisson, haute, four et réfrigérateur), une salle de bain avec WC et deux chambres. Ce bien est complété de deux places de parking et d'une cave.
Logement neuf, première mise en location.
Bien non soumis au DPE : Monument historique.
Les informations sur les risques auxquels ce bien est exposé sont disponibles sur le site Géorisques : www.georisques.gouv.fr.
REF : M003
Honoraire agence : 13€/m2 (frais état des lieux entrant inclus)
MGLJ - Au cœur de vos projets immobiliers, on vous accompagne dans la Vente, la Location et la Gestion immobilière.
Les informations sur les risques auxquels ce bien est exposé sont disponibles sur le site Géorisques : www.georisques.gouv.fr
Réf : 25
Disponibilité
immédiate
Caractéristiques
Aménagements
- chauffage : individuel electrique
Informations financières
- loyer mensuel charges comprises : 725 €
- dont provision mensuelle des charges locatives : 90 € (régularisation annuelle)
- dépôt de garantie : 635 €
- honoraires charge locataire TTC : 754 €
- dont pour l'état des lieux : 174 €
Imprimer la ficheVoir nos prestations et tarifs
Classe énergie et classe climat
DPE VIERGE
DPE ANCIENNE VERSION
L'agence
MGLJ
8 RUE LEO LAGRANGE
59263 HOUPLIN ANCOISNE
Tél : 06 10 13 17 55
Votre conseiller
Marie-Laure FERNANDES
Tél : 06 10 13 17 55
Contactez-nous
pour visiter ce bien
Ecoles, transports, sorties et commerces sur SECLIN (59113)
Seclin est une ville de 12 834 habitants. Côté immobilier, les habitations sont réparties en 64 % de maisons et 36 % d'appartements. On y trouve des commerces dont des supermarchés ou supérettes. On trouve des établissements scolaires et des crèches à Seclin.






