APPARTEMENT T3 A LOUER - ROUBAIX - 59.93 m2 - 750 € charges comprises par mois
LOCATION - TYPE 3 – ROUBAIX
'agence MGLJ vous propose à la location un appartement de type 3 de 59.93m2 sur la commune de ROUBAIX.
À louer pour un loyer mensuel de 689,76€ + 60,00€ de provision sur charges soit un loyer de 749,76€ charges comprises.
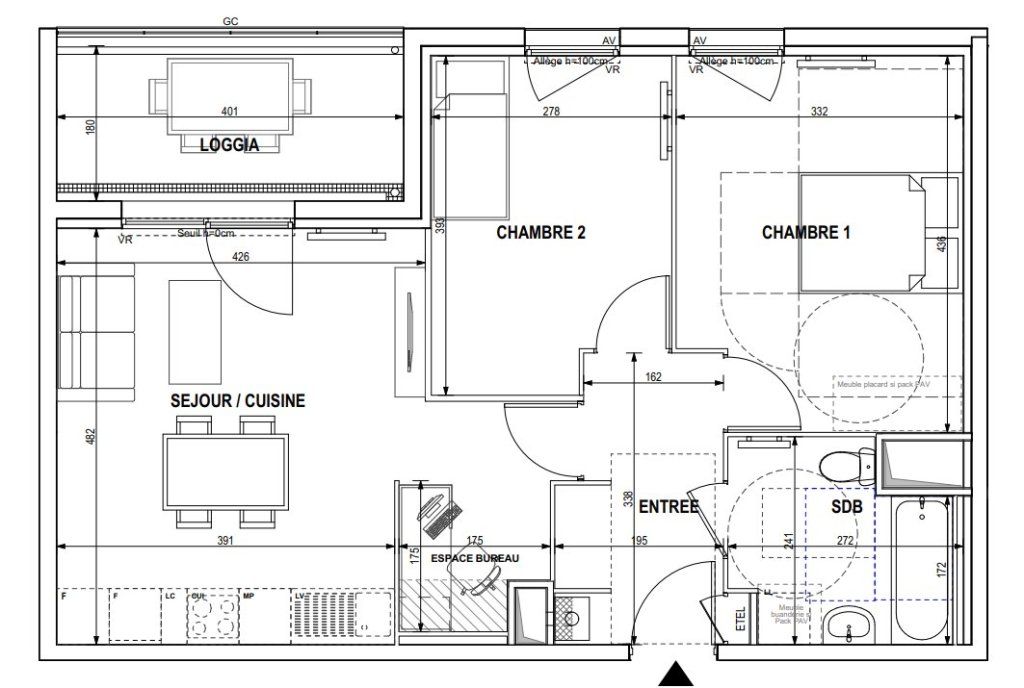
Un appartement de type 3, comprenant une entrée, une pièce de vie, une cuisine meublée, une salle de bain avec WC et deux chambres. Ce bien est complété de deux places de parking.
Bien soumis au DISPOSITIF PINEL.
Les informations sur les risques auxquels ce bien est exposé sont disponibles sur le site Géorisques : www.georisques.gouv.fr.
Honoraire agence : 13€/m2 (frais état des lieux entrant inclus)
MGLJ - Au cœur de vos projets immobiliers, on vous accompagne dans la Vente, la Location et la Gestion immobilière.
Les informations sur les risques auxquels ce bien est exposé sont disponibles sur le site Géorisques : www.georisques.gouv.fr
Réf : 49
Disponibilité
immédiate
Caractéristiques
Informations financières
- loyer mensuel charges comprises : 750 €
- dont provision mensuelle des charges locatives : 60 € (régularisation annuelle)
- dépôt de garantie : 690 €
- honoraires charge locataire TTC : 750 €
- dont pour l'état des lieux : 180 €
Imprimer la ficheVoir nos prestations et tarifs
Classe énergie et classe climat
dont émissions de Gaz à effet de serre
En savoir plus
Classe énergie et classe climat
Connexion internet
| | Cuivre DSL de 8 à 30 Mbit/s
Fibre optique plus de 1 Gbit/s
|
Données en provenance de l'Arcep
Montant estimé des dépenses annuelles d'énergie
Les dépenses d'énergie sont estimées entre 407 € et 551 € par an selon l'année de référence 2021.
Estimation de dépenses en fonction du logement et pour une utilisation standard sur 5 usages (chauffage, eau chaude sanitaire, climatisation, éclairage, auxiliaires).
L'agence
MGLJ
8 RUE LEO LAGRANGE
59263 HOUPLIN ANCOISNE
Tél : 06 10 13 17 55
Votre conseiller
Marie-Laure FERNANDES
Tél : 06 10 13 17 55
Contactez-nous
pour visiter ce bien
Ecoles, transports, sorties et commerces sur ROUBAIX (59100)
Roubaix est une ville de 98 892 habitants. Côté immobilier, les habitations sont réparties en 43 % de maisons et 57 % d'appartements. On y trouve des commerces dont des supermarchés ou supérettes. On trouve des établissements scolaires et des crèches à Roubaix.

